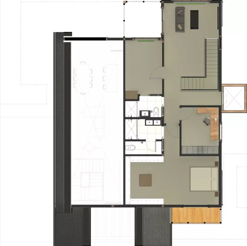
The Falcon: A Modern Single-Family Home Crafted for Generational Living
Four-bedroom, four-bathroom home blending modern luxury with timeless elegance.
Expansive, light-filled interiors with large windows and refined architectural detailing
Meticulously crafted layout balancing comfort, style, and natural beauty.
Seamless connection to the surrounding landscape for enduring, generational livability.
